




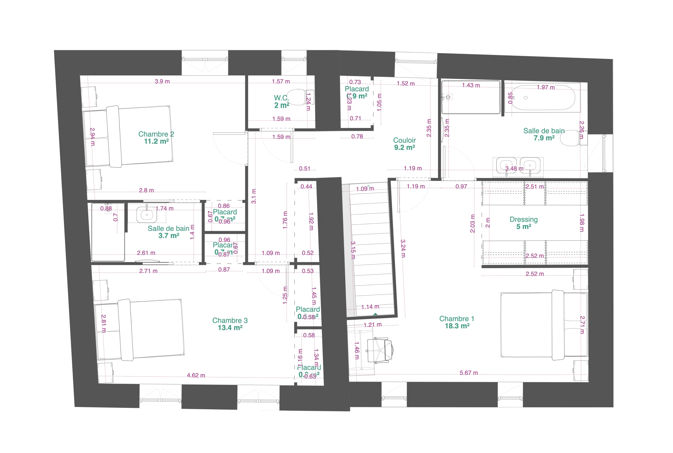
Un plan d’aménagement 2D est une projection de votre logement vue en plan, c’est-à-dire à plat, vue de haut. Un plan permet une représentation simplifiée de votre intérieur puisque vos espaces sont visibles seulement en 2 dimensions. De plus, le rendu est souvent en noir et blanc.
C’est pourquoi, il peut être parfois difficile de se projeter uniquement avec un plan 2D. Cet outil est plutôt destiné à une approche technique. Il permet notamment de vous fournir les cotes précises des futures pièces ou des menuiseries. Il permet également d’identifier les murs porteurs et les cloisons légères ou encore les points d’eau. Ces informations peuvent être utiles lors des échanges avec vos artisans. Dessinés à l’échelle, ces plans sont idéaux pour se représenter la taille d’une maison et pré-visualiser la superficie des pièces.
En plus de montrer l’aspect général et la structure de votre futur logement, les plans vous aident également pour l’aménagement intra pièce. Nos plans d’aménagement intègrent tout le mobilier principal, les éléments existants (cheminée, gaines techniques…) ou encore l’implantation de votre cuisine et de vos salles de bain. Les plans 2D donnent donc une vue d’ensemble de votre bien et de sa configuration.
L’élaboration des plans est donc la première étape qui se fait en amont de la construction ou de la rénovation de votre habitation et vous permet d’avoir une vision claire de sa disposition.













Contrairement aux traditionnels plans 2D, les plans 3D sont tout simplement des plans en 3 dimensions. Ils incluent donc la hauteur sous plafond dans la représentation. Les plans 3D se différencient également parce qu’ils sont représentés en couleur, ce qui offre une meilleure compréhension.
Grâce à ces caractéristiques, le plan 3D permet de vous projeter pour mieux appréhender l’espace, le volume de vos meubles, la taille des pièces, les dimensions des ouvertures etc. Cet outil vous permet d’obtenir une vue d’ensemble de votre logement : une vision claire et globale de l’aménagement de votre bien et de la disposition des pièces.
Enfin, ces plans ont l’avantage d’être évolutifs : il est très facile d’y apporter des modifications et ils s’adaptent facilement à vos idées. Par exemple, si vous souhaitez changer de revêtement de sol, vous pouvez essayer différents parquets ou carrelages en quelques clics seulement.
Les plans 3D sont aujourd’hui des outils incontournables pour concevoir pertinemment vos aménagements et vous apporter une vision précise du rendu final.






Un rendu photoréaliste est une perspective 3D de votre pièce. Ces images vous permettent de vous immerger dans votre futur intérieur. Cela permet d’adopter un certain angle et de capturer une vue d’une pièce selon un point stratégique mettant en évidence la future configuration de votre pièce dans l’espace. Cela peut-être un salon, une cuisine, une chambre, un salon, un bureau etc.
Les photoréalistes sont l’aboutissement du travail d’aménagement, de modélisation et de décoration. Ces visuels mettent l’accent sur la projection dans l’espace, la décoration, les textures, les matériaux et les jeux de lumières dans le but de reproduire l’ambiance recherchée. Elles permettent de vous représenter avec une grande précision à quoi ressemblera votre intérieur après les travaux. C’est l’outil idéal pour vous projeter, publier une annonce de vente immobilière, ou bien pour fournir des visuels de vente à vos clients.






La visite virtuelle est l’outil le plus avancé de visualisation 3D. Il s’agit d’une projection interactive et immersive d’un bien immobilier. Elle vous permet de visiter comme si vous étiez sur place. Conçue comme un assemblage d’images panoramiques 360° de chaque pièce, vous pouvez vous déplacer virtuellement dans votre futur logement à partir de points de vue stratégiques. Vous pouvez ainsi circuler de pièce en pièce et explorer librement votre futur logement.
Cet outil vous permet d’appréhender les flux de circulation dans votre futur logement et les connexions entre les pièces. La visite virtuelle offre également la possibilité au spectateur de promener son regard tout autour de lui et d’admirer la pièce dans les moindres détails, du sol au plafond. Finalement, la visite virtuelle permet de dynamiser l’espace et de vous immerger totalement dans votre bien.
Ainsi, grâce à son rendu réaliste, la visite virtuelle vous permettra de visualiser votre projet de rénovation ou de construction. Vous pourrez mieux vous projeter et découvrir précisément à quoi ressemblera votre intérieur une fois les travaux terminés.
Cabinet d’architecte d’intérieur, nous utilisons et mettons à votre service les outils de modélisation 3D pour vous immerger dans votre futur agencement.
Cabinet d’architecte d’intérieur, nous utilisons et mettons à votre service les outils de modélisation 3D pour vous immerger dans votre futur agencement.
CONCEPT
VOUS ÊTES ?
EN SAVOIR PLUS